江蘇歐西盾科技有限公司
免費熱線:400-685-3699
聯系電話:0517-87693333
聯系地址 :江蘇省淮安市洪澤經濟開發區開拓路9號
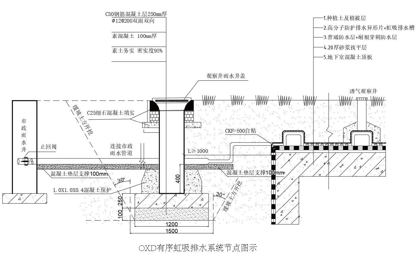
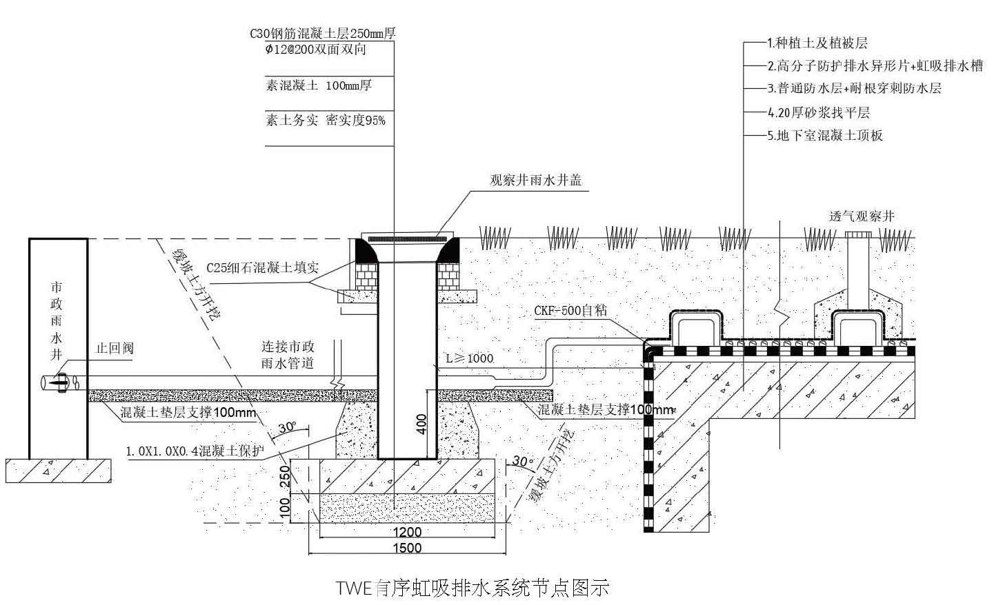
1、土壤下滲水持續向下滲透,通過高分子防護異型片流至虹吸排水槽內。
2、在虹吸排水槽上安裝通氣管,虹吸排水槽內的水在空隙、重力和通氣的綜合作用下不斷向出水口處匯集。
3、出水口通過管道變徑的方式,使雨水在虹吸直管形成滿流,從而形成虹吸,虹吸排水槽內的水不斷被吸入觀察井。
4、經觀察井沉淀,排入有序虹吸排水系統,待晴天需要對綠化植物進行澆灌時再對雨水進行循環利用,從以往的被動排水轉變成了現在的主動式排水,從而真正實現了零坡度、有組織排水。
